espa banner

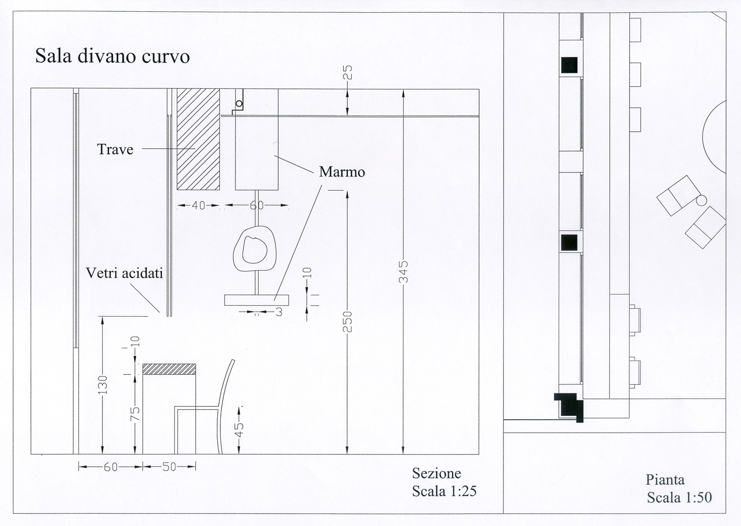
09/ Ξενοδοχείο ‘PARK HOTEL’ στην Ιταλία


Figino, Milano / 2002
/ Διαμόρφωση εσωτερικού χώρου / Σχεδιασμός επίπλωσης
Π. Παντελιάδου, Studio Dell’ Acqua Bellavitis






Recent Portfolios


elGreek