espa banner

07/ Μονοκατοικία ‘Casa Martin’


Siracusa, Ιταλία / 2002
/ Αρχιτεκτονική μελέτη / Διαμόρφωση εσωτερικού χώρου
Π. Παντελιάδου, Studio Dell’ Acqua Bellavitis

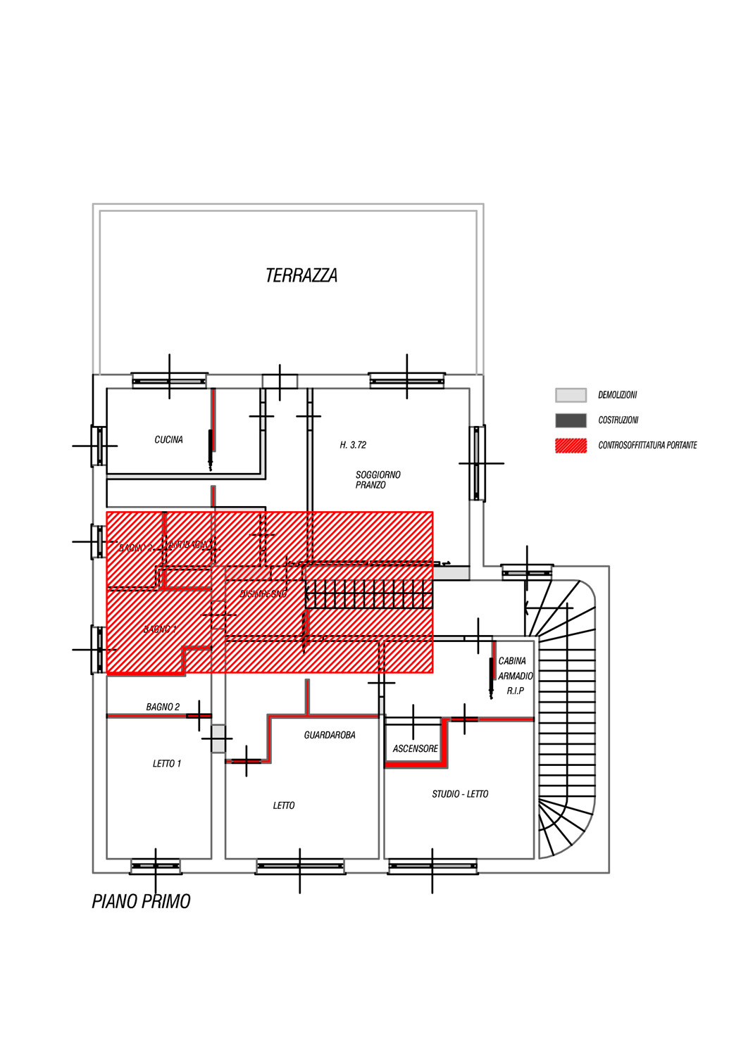
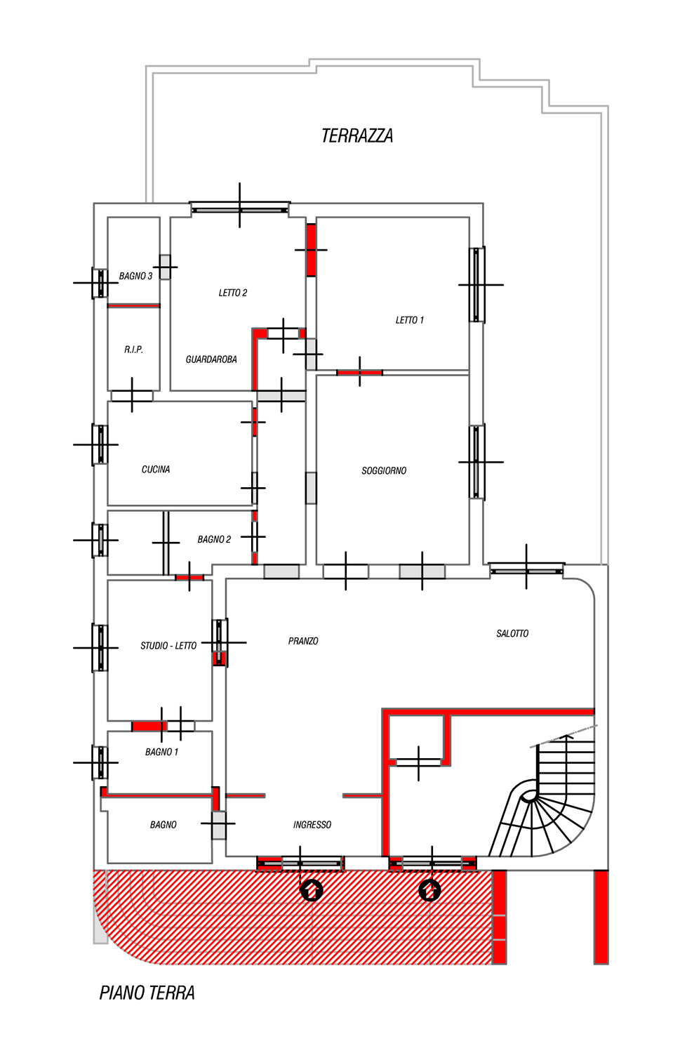
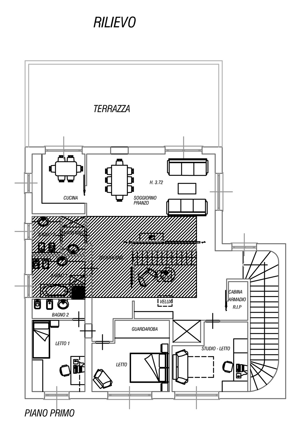
Η μελέτη αφορά στη μετατροπή διώροφης μονοκατοικίας σε δύο αυτόνομες κατοικίες στην περιοχή Siracusa της Σικελίας.

Προτείνονται δύο λύσεις, η πρώτη με οριζόντιο διαχωρισμό της κατοικίας σε 1ο και 2ο όροφο για τους δύο ιδιοκτήτες και η δεύτερη με κατακόρυφο διαχωρισμό προκειμένου και οι δύο να έχουν ισόγειο και όροφο στην κατανομή των λειτουργικών χώρων.






Recent Portfolios


elGreek